HOME
ABOUT STUDIO BE
ETHOS
COLLABORATORS
SERVICES
PASSIVHAUS
ARCHITECTURE FOR WELLBEING
LANDSCAPE-LED DESIGN
PORTFOLIO
PROJECTS
SUSTAINABLE NETWORK
Sustainable Network
Blog
Contact
Menu
Street Address
City, State, Zip
Phone Number
Architecture & Gardens for Wellbeing
Your Custom Text Here
HOME
ABOUT STUDIO BE
ETHOS
COLLABORATORS
SERVICES
PASSIVHAUS
ARCHITECTURE FOR WELLBEING
LANDSCAPE-LED DESIGN
PORTFOLIO
PROJECTS
SUSTAINABLE NETWORK
Sustainable Network
Blog
Contact
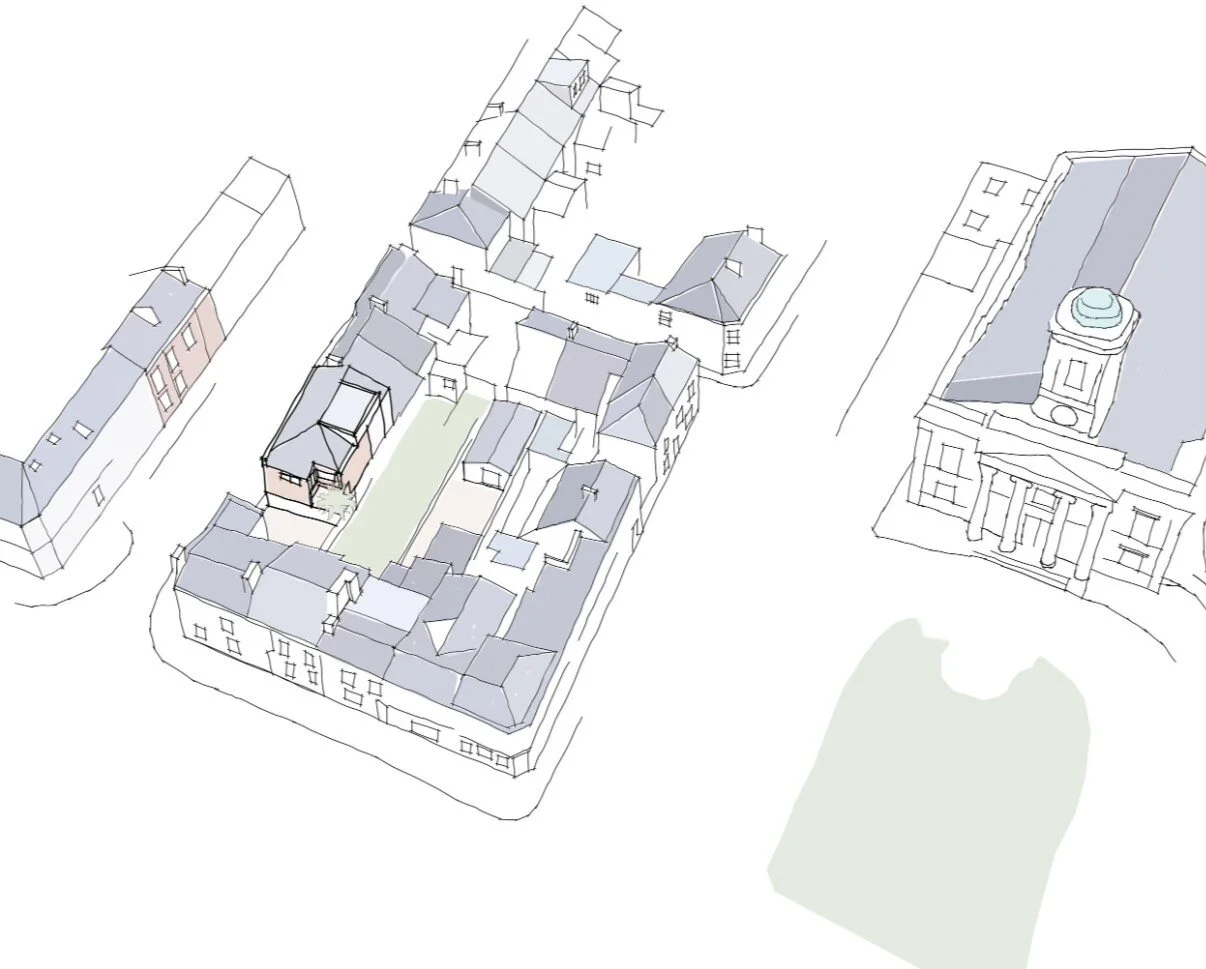
Hungerford Street
Hungerford street